
FLEXIBLE SPACE AVAILABLE IN KELOWNA’S PANDOSY NEIGHBOURHOOD | SUBLEASE
550 OSPREY AVENUE | KELOWNA BC
Contact Listing Agent
For Lease

The Opportunity
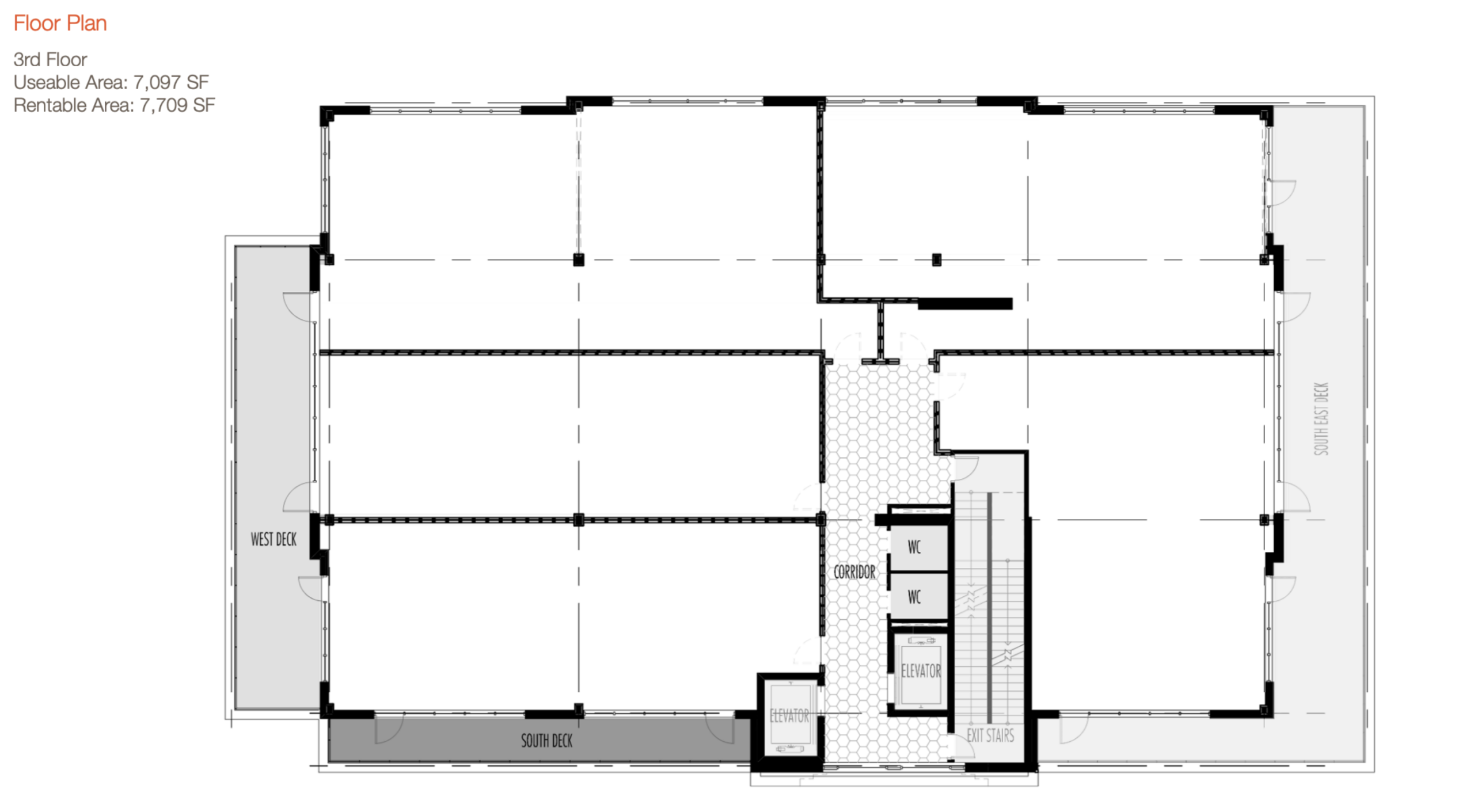
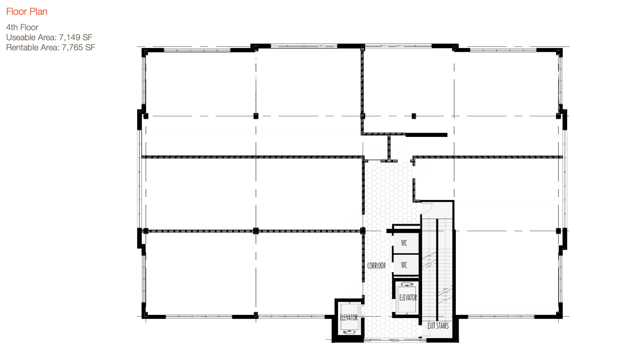
Sublease opportunity at 550 Osprey Avenue with up to 15,474 sq.ft. of leasable area across the third and fourth floors. The space is delivered in shell condition, providing medical, administrative, and professional office users with flexibility to configure improvements to suit their operational and layout needs.
Located in Kelowna’s Lower Mission, the building sits within a growing mixed-use node supported by continued residential development and expanding neighbourhood services. The tenant roster includes established healthcare and professional practices such as dental, dermatology, endodontic, trauma therapy, and accounting, creating a strong complementary environment for medical and office users.
Property Details
Address: |
550 OSPREY AVENUE | KELOWNA BC |
Leasable Area: |
15,474 SF |
Unit Size: |
7,709 SF + |
# of Units: |
2 |
Floor: |
3rd & 4th |
Zoning: |
UC5 | Pandosy Urban Centre |
Parking: |
9 Reserved |
Possession: |
Immediate |
Operating Costs: |
$10.48 |
Presented By

Meghan Cortese PREC*
250.862.7038
meghancortese@rlkcommercial.com

Morgan Asling
250.862.7038
morganasling@rlkcommercial.com
Property Details
| Municipal Address | 550 Osprey Avenue, Kelowna BC, V1Y 9V9 |
| Total Leaseable Area | 15,747 sq.ft |
| 3rd FL | 7,709 sq.ft |
| 4th FL | 7,765 sq.ft |
| TIA | Contact listing agent |
| Additional Rent (2026) | $10.48 psf |
| Current Condition | Shell state, open concept |
| Ceiling Height | 12′ |
| Parking | 9 total stalls (3rd FL – 5 stalls) | (4th FL – 4 stalls) |
| Additional Parking | Adjacent Osprey lot & metered street parking |
SUBLEASE DETAILS
| Head Lease Commencement | September 26th 2026 |
| Head Lease Term | 10 years |
| Head Lease Expiry | September 25th 2034 |
BUILDING INFORMATION
- 6 storey building
- Two levels of structured parking served by a vehicle elevator system for efficient access and circulation.
- Third floor features three private patios for tenant use.
- Base building specifications support procedure and clinic operations
- 12-foot ceiling heights
- Floor-to-ceiling windows
- Roof load capacity for specialized HVAC systems
- Diesel generator capability for emergency backup power (roughed-in),
- Two elevators designed for clinical use, including one sized to accommodate a hospital gurney.
- Vehicle elevator
- Bike storage
- Lockers
- Shower facilities
FLOOR PLAN


Location Overview
550 Osprey Avenue is located in Kelowna’s Pandosy neighbourhood, a well-established, walkable area known for its mix of neighbourhood retail, professional services, and growing residential density. Positioned just off the Pandosy corridor, the property is surrounded by cafés, shops, and everyday amenities, and sits minutes from Boyce-Gyro Beach Park and the Kelowna campus of Okanagan College, two key local anchors that support steady activity in the area. Continued multi-family and mixed-use development nearby is adding population and demand, while strong connectivity to Lakeshore Road, KLO Road, and staff.

























































